TL;DR
For most of the last AI cycle, real estate tools focused on search, summaries, document analysis, and market intelligence. That was useful, but it still left users with the same basic problem: knowing more did not automatically make it easier to visualize, test, or refine an idea.
That is beginning to change.
A new layer is emerging in real estate AI, one that can take a plain language brief and turn it into a contextual spatial concept. In practical terms, that means a system can now generate floor plan style layouts, early interior direction, exterior concepts, and stakeholder friendly visual hypotheses in minutes.
The larger shift is not just that AI can create something visually appealing. It is that AI is starting to compress the time, effort, and cost required to move from idea to something reviewable. That could have major implications for developers, investors, operators, design teams, and the wider proptech market.
Real Estate AI Is Leaving the Pure Chat Phase
In many industries, the first wave of AI products followed a familiar pattern. Better search. Faster summarization. Smarter extraction. More conversational interfaces.
Real estate followed the same path.
That first wave delivered value. Teams could analyze listings faster, summarize offering memoranda, scan lease documents, surface market intelligence, and ask more natural language questions about an asset or submarket. But even with those gains, the workflow still had a gap. Users could learn faster, but they still had to translate that learning into a concept, a direction, or a visual interpretation.
This is where the next phase starts to look different.
Instead of stopping at information, some platforms are beginning to move into spatial output. A user can describe a compact urban apartment, a family oriented 3BHK, a corporate office layout, or a full service restaurant, and the system can respond with something visual and structured enough to review immediately.
That transition is significant because it changes the role of the AI. It is no longer only answering. It is beginning to propose.
The New Layer: Generative Spatial Intelligence
The phrase “AI generated floor plans” will likely get a lot of attention, but the more useful term may be spatial intelligence.
That is because the challenge is not just drawing lines on a page. The system has to infer relationships between spaces, understand room hierarchy, approximate furniture fit, organize circulation, separate public and private zones, and reflect the logic of different asset types.
A restaurant does not function like an apartment. An office does not function like a villa. A layout for a compact urban buyer should not feel like a luxury family product.
When AI starts producing outputs that reflect these distinctions, it moves beyond generic image generation. It begins to operate as a contextual layer for space planning and early concept development.
That is why this shift deserves attention.
The output may still require human validation. In many cases it absolutely will. But the existence of a coherent first concept changes the economics of exploration.
The Real Breakthrough Is Not the Drawing, It Is the Loop
The easiest way to misread this trend is to treat it as a novelty story.
AI can draw a plan. AI can make a mood board. AI can render an office.
Interesting, yes. But that is not the real breakthrough.
The real breakthrough is what happens after the first concept appears.
Once a user can see a layout, a very different level of conversation becomes possible. They can ask whether the circulation is efficient, whether the room mix supports the likely buyer, whether the office plan is too cabin heavy, whether the restaurant flow supports service speed, or whether the concept deserves deeper work.
This is why the most important product question is no longer “Can the model generate something visual?”
The better question is “Can the platform generate something useful enough to accelerate judgment?”
That is a much higher bar, and it is the one that will likely separate real enterprise products from short lived demos.
GRAI Offers a Glimpse of Where This Category Is Heading
One reason this shift is becoming easier to understand is that there are now visible examples of it in action.
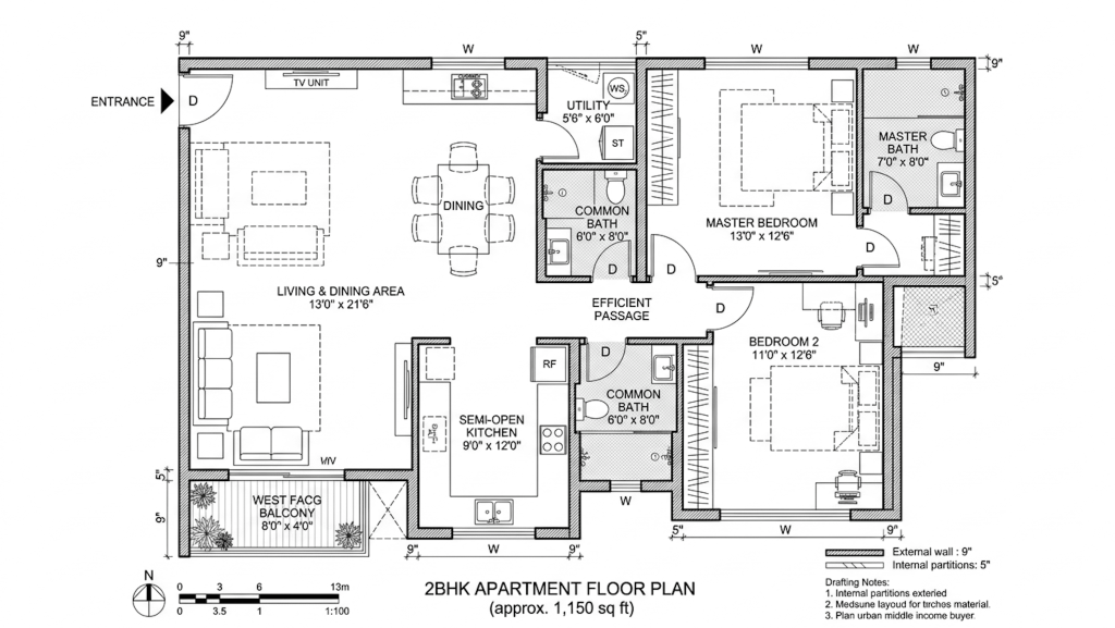
GRAI, a real estate focused AI platform, has started generating contextual floor plan concepts and related visuals from natural language prompts. The examples are still concept level outputs, not technical drawings, but they show how quickly the category is evolving.

In the office example, the system interprets the brief through workplace logic. Reception, open workspace, meeting rooms, executive cabins, storage, washrooms, and pantry functions are all placed in a way that reflects an operational understanding of office planning. It is not simply producing a stylish office picture. It is generating a structured hypothesis.

The compact apartment example shows something different. It understands the grammar of urban residential efficiency. The output organizes living, dining, kitchen, utility, bedrooms, balcony, and baths into a coherent arrangement that gives users something reviewable almost instantly.


The restaurant example extends the same idea into hospitality. Guest seating, private dining, bar placement, prep, kitchen flow, storage, washrooms, and staff movement all appear as part of an integrated concept. Even where technical accuracy still needs professional checking, the system is no longer operating at the level of generic inspiration.

And in presentation style outputs, the advantage becomes even clearer. A stakeholder who may not read a floor plan comfortably can still react to a visual concept. That reduces friction in internal reviews, investor presentations, and early alignment conversations.
Why Cost Compression Could Be a Bigger Story Than Visual Quality
There is another angle here that could prove even more important over time: AI is compressing the cost of contextual visualization.
Historically, moving from an idea to a visual concept involved real friction. It took time, coordination, specialist effort, software, revisions, and often budget before a team even knew if the direction was worth pursuing. That friction limited how many options could be explored, how quickly weak ideas could be discarded, and how early stakeholders could react to something concrete.
AI changes that equation.
A platform like GRAI, currently priced at $4.99, does not replace architects, planners, or technical design tools. But it can dramatically lower the cost of reaching a usable first hypothesis. That distinction is important. The comparison is not “AI versus CAD.” The more relevant comparison is “AI versus the cost of waiting for a first visual concept.”
For developers and investors, that means more directions can be tested before substantial resources are committed. For operators, it means workflows can be challenged earlier. For design teams, it means the blank page is no longer the only starting point.
That kind of cost compression has a habit of creating new user behavior. Once exploration becomes cheaper and faster, people tend to do more of it.
This Could Reshape Several Real Estate Workflows
The effect of this shift will not be limited to one corner of the market.
Developers could use spatial AI to compare residential product typologies earlier, align teams faster, and assess concept direction before deeper design engagement.
Investors could use it to visualize an idea before or alongside underwriting, making feasibility conversations more grounded and less abstract.
Office operators and workplace teams could use it to explore density, collaboration zones, cabins, and amenity layouts without waiting for traditional concept cycles.
Hospitality teams could test service flow, private dining mix, kitchen placement, and guest movement much earlier.
Even architects and designers could benefit, not because the AI replaces them, but because it hands them a sharper first artifact to critique and refine.
This is the pattern that often signals a meaningful software shift: the tool does not need to replace the incumbent workflow outright. It only needs to improve the front end enough to change how work begins.
The Limits Are Real, and They Matter
That said, realism is essential.
The current outputs in this category should not be mistaken for permit ready drawings, code compliant plans, or technically verified documents. Even visually strong examples can contain problems in dimensions, notation, labeling, area reconciliation, or compliance logic.
That is not a minor detail.
If companies in this space oversell concept outputs as technical deliverables, they risk losing trust quickly. The better positioning is more disciplined: these tools are powerful for ideation, iteration, comparison, and early stage review. Human experts remain essential for validation, compliance, technical development, and execution.
In other words, AI can improve the beginning of the process. It should not be expected to finish the process alone.
That is where the strongest platforms are likely to be the most credible. They will not confuse concept generation with technical certainty.
What Proptech Buyers and Investors Should Watch Next
For buyers, founders, and investors, the most interesting question is not whether this looks impressive today. It is whether this becomes a durable product category tomorrow.
A few signs will be worth watching closely.
First, whether platforms can tie spatial generation to real workflow value, not just visual novelty.
Second, whether they can connect these concepts to feasibility, underwriting, operating logic, or buyer positioning.
Third, whether they can support revision and critique in a way that feels domain aware.
And fourth, whether the economics of this new workflow become compelling enough to change behavior at scale.
If the answer to those questions keeps moving in the right direction, real estate AI could evolve from a mostly informational layer into a much more operational one.
That would be a major category shift.
The Larger Signal
The broader lesson extends beyond real estate.
Many vertical AI markets are now moving from knowledge assistance toward action assistance. The first generation helped users find and process information faster. The next generation is starting to help users form, test, and refine decisions in the language of the domain itself.
In real estate, that language increasingly includes space.
That is why spatial intelligence may become one of the more interesting frontiers in vertical AI over the next few years. Not because it creates prettier outputs, but because it turns ideas into artifacts early enough for better judgment to begin.
Final Take
Real estate AI is starting to move from chat toward contextual spatial output.
That shift could end up being more important than it first appears.
The real value is not only in generated floor plans, renders, or mood boards. It is in the compression of time, cost, and friction between idea and evaluation. Once that gap shrinks, more options can be explored, weak concepts can be discarded sooner, and stronger ideas can move forward with better clarity.
Platforms like GRAI offer an early glimpse of that direction.
If this category continues to mature, the next winners in real estate AI may not be the ones that simply answer questions best. They may be the ones that help users see, test, and refine possibilities before too much time and money have already been committed.
FAQs
What is spatial intelligence in real estate AI?
Spatial intelligence in real estate AI refers to a system’s ability to understand room relationships, circulation, zoning, layout logic, and asset specific space planning, then generate or evaluate concepts based on that understanding.
How is this different from a normal AI chatbot?
A normal AI chatbot usually focuses on text based answers, summaries, and retrieval. Spatial AI can move beyond text and generate visual concepts such as floor plans, interiors, exteriors, and structured layout hypotheses.
Are AI generated floor plans technically accurate?
They can be visually convincing and spatially plausible, but they still require human validation. Users should not treat them as final technical drawings without professional review.
Why is this useful for real estate companies?
It can reduce the time and cost required to move from idea to reviewable concept, helping teams explore options, align stakeholders, and improve early stage decision making.
Does this replace architects or CAD software?
No. The strongest use case today is early concept generation and workflow acceleration. Architects, engineers, and technical design software remain essential for detailed development and execution.
Why is GRAI relevant in this discussion?
GRAI is a live example of how real estate AI platforms are beginning to combine contextual generation, spatial concepts, and decision support within a domain specific workflow.
What is meant by cost compression in contextual visualization?
It means lowering the time, effort, and money needed to produce a meaningful first visual concept. That allows more exploration before heavier professional workflows begin.
Which sectors could benefit most?
Residential development, office planning, hospitality, mixed use projects, design collaboration, and early stage investment screening could all benefit.